• ПоискГлавная
  • Подписаться на НовостиНовости
  • Подписаться на СтатьиСтатьи
  • Подать объявлениеГазета
  • Доска объявлений
  • Подать объявление на сайт
  • Академгородок
  • О нас
  • Афиша
  • Прайс
  • Юридическая информация
  • Политика конфиденциальности
  • Карта сайта
  • Написать в редакцию
  • Войти
  • 27.07.2012, 08:33

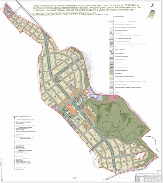
    Утвержден план застройки поселка Каинская заимка

    Утвержден план застройки поселка Каинская заимка

    Утвержден план застройки поселка Каинская заимка

    Лыжня в поселке для ученых СО РАН пройдет по эстакаде и рекреационно-парковой зоне.

    Как сообщается на сайте ЦОС СО РАН, окончательную версию территориального плана застройки утвердил Совет депутатов Барышевского сельсовета Новосибирского района НСО. Этому предшествовало достижение компромисса со спортивной общественностью Академгородка, настаивавшей на сохранении в этой местности 10-километровой лыжной трассы, в том числе и для соревнований «Лыжня России». Новый проект застройки предусматривает сооружение эстакады для лыжни над улицами будущего посёлка и отводит часть территории под рекреационно-парковую зону, по которой пройдёт спортивная трасса.

    Там сложный рельеф, хорошо подходящий для лыжников, – отмечает председатель Совета научной молодёжи СО РАН к.х.н. Андрей Матвеев, – теперь рассматриваются варианты благоустройства этого участка. Общественные и спортивные организации обсуждают идеи прокладки велосипедных и беговых дорожек. В тех местах есть посадки редких видов деревьев, что сделает их привлекательными для прогулок и отдыха».

    Как сообщил Андрей Матвеев, обновлённый проект учитывает пожелания СО РАН по типам жилья: выросло число индивидуальных коттеджей (до 707), при этом уменьшилась площадь участков при них с 10 до 7.5 соток. В проекте остались 90 блок-квартир в таунхаусах и 219 квартир в 3-4 этажных домах подъездного типа. Социальная сфера представлена школой, 2 детскими садами, детским клубом по интересам, стадионом, спортзалом на 260 квадратных метров, бассейном, домом культуры, библиотекой, поликлиникой, аптекой, магазинами и другими объектами. Через весь посёлок пройдет трасса шириной 40 метров, одним концом выходя на дорогу «Академгородок-Ключи», другим – на улицу Арбузова в микрорайоне «Щ». Проект предусматривает, в перспективе, и ряд прямых выездов из посёлка в сторону институтской зоны и технопарка новосибирского Академгородка.

    Другие новости на тему

    Популярное