Объявление №19991, добавлено 16.10.202118:54, просмотров: 486
Спускоподъемные устройства и спасательные шлюпки
Спускоподъемные устройства и спасательные шлюпки
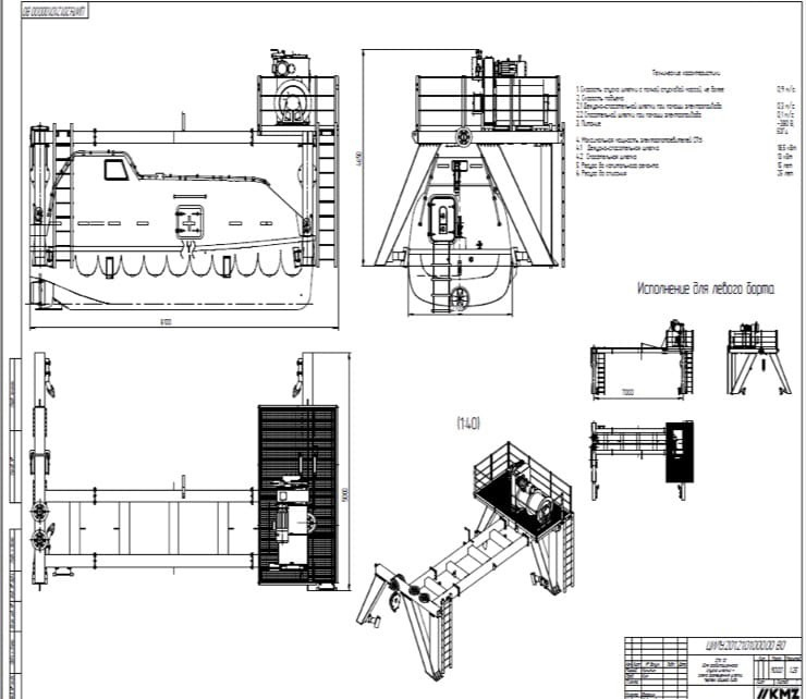
ООО «КМЗ» разрабатывает и изготавливает спуско-подъемные устройства и спасательные и дежурные шлюпки предназначенные для коллективной эвакуации людей в случае аварии на судах, ледоколах и стационарных буровых платформах.
Спуско-подъемные устройства (СПУ) предназначены для спуска спасательных шлюпок на поверхность воды и подъема спасательных шлюпок на штатное место.
Особенностями данной разработки являются уникальные технические требования:
Пассажировместимость – 60 человек;
Тип шлюпки закрытый, огнезащитный;
Скорость шлюпки на тихой воде должна быть не менее 6 узлов;
Запас топлива должен быть предусмотрен для обеспечения движения полностью загруженной шлюпки со скоростью 6 узлов в течение 24 часов;
Определяющие конструктивные или эксплуатационные особенности шлюпки должны соответствовать Правилам классификации и постройки морских судов, РС, 2018г.
Тип СПУ – для вертикального гравитационного тросового спуска спасательной шлюпки на 2-х грузовых канатах и для подъема спасительной шлюпки с помощью электрического и ручного привода.
Высота спуска (подъема) спасительной шлюпки при установке над уровнем воды – не менее 25 м.
Конструктивные особенности оборудования предусматривают работу при температурах до -500С;
На СПУ должны быть предусмотрены конструкции крепления кабелей, обеспечивающие защиту от обледенения.
Телефон : 78123185204
ООО «КМЗ» разрабатывает и изготавливает спуско-подъемные устройства и спасательные и дежурные шлюпки предназначенные для коллективной эвакуации людей в случае аварии на судах, ледоколах и стационарных буровых платформах.
Спуско-подъемные устройства (СПУ) предназначены для спуска спасательных шлюпок на поверхность воды и подъема спасательных шлюпок на штатное место.
Особенностями данной разработки являются уникальные технические требования:
Пассажировместимость – 60 человек;
Тип шлюпки закрытый, огнезащитный;
Скорость шлюпки на тихой воде должна быть не менее 6 узлов;
Запас топлива должен быть предусмотрен для обеспечения движения полностью загруженной шлюпки со скоростью 6 узлов в течение 24 часов;
Определяющие конструктивные или эксплуатационные особенности шлюпки должны соответствовать Правилам классификации и постройки морских судов, РС, 2018г.
Тип СПУ – для вертикального гравитационного тросового спуска спасательной шлюпки на 2-х грузовых канатах и для подъема спасительной шлюпки с помощью электрического и ручного привода.
Высота спуска (подъема) спасительной шлюпки при установке над уровнем воды – не менее 25 м.
Конструктивные особенности оборудования предусматривают работу при температурах до -500С;
На СПУ должны быть предусмотрены конструкции крепления кабелей, обеспечивающие защиту от обледенения.
Телефон : 78123185204
+7-XXX-XXX-XX-XX Показать
5 ₽
486 0
Поделиться:



Комментарии